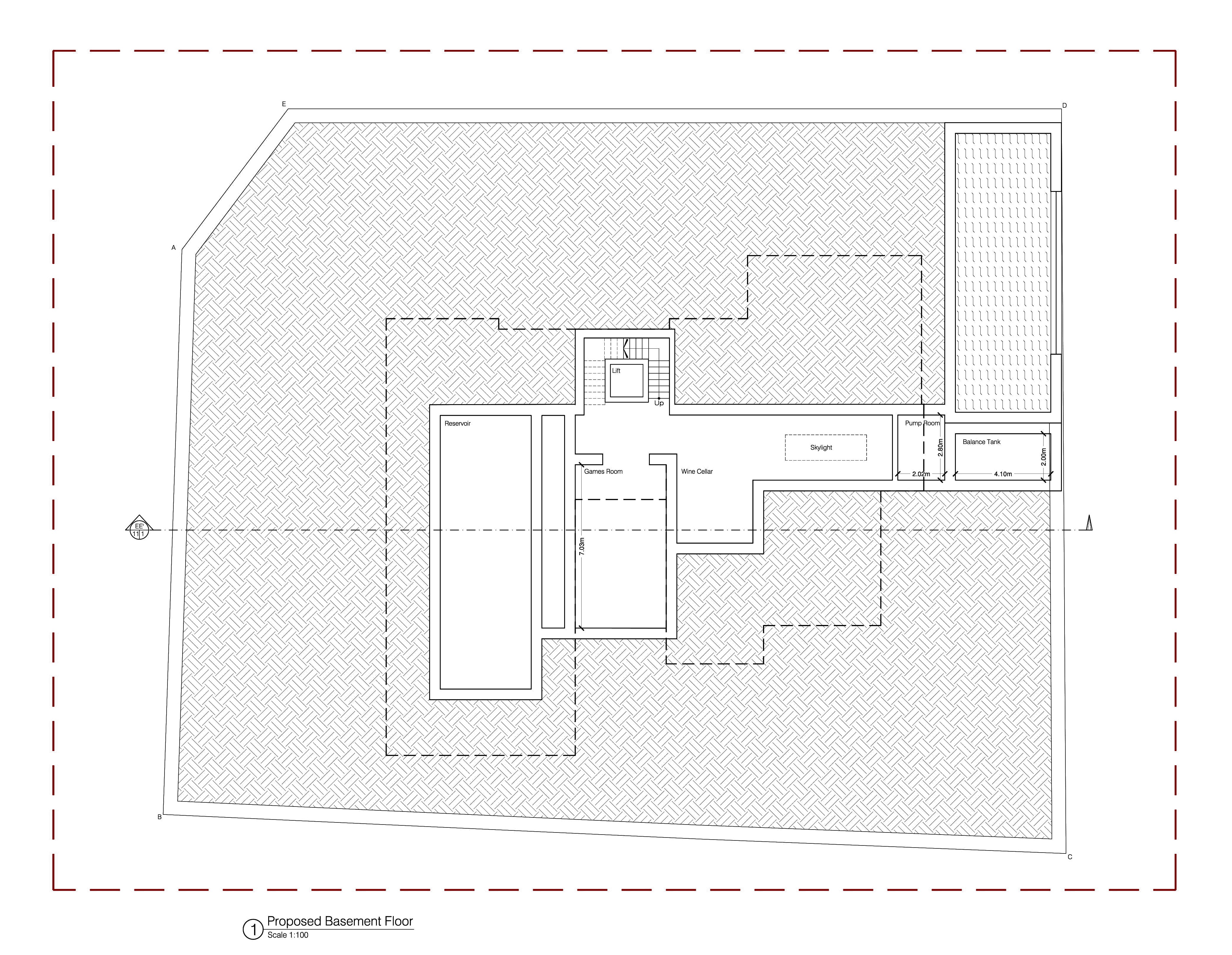
Designed for a serene countryside setting, this fully detached villa seamlessly integrates with its natural surroundings. The project focused on using locally inspired materials and traditional architectural styles to maintain harmony with the environment. I was responsible for on-site visits, client consultations, and developing design proposals using AutoCAD. My work included detailed floor plans, sections, elevations, and visualisations, ensuring both functionality and aesthetic appeal. The final design balances rustic charm with modern comforts, delivering a home that respects its landscape while meeting the client’s vision.


